Aluminium-Türen
heroal D 72 - Für stark frequentierte Eingangsbereiche
Funktionale Vielseitigkeit mit vielen Öffnungsarten bei heroal-typischer Wärmedämmung und Statik bietet heroal D 72 (d=door). Mit dem geprüften und sicheren heroal-System lassen sich alle gängigen Öffnungsarten inkl. Automatiktüranlagen sowie einbruchhemmende Türen – auch mit Fluchttürfunktion – realisieren.
Aluminium-Elemente
Aluminium-Fenster | |
Aluminium-Türen | |
Aluminium-Schiebetüren |
Überblick

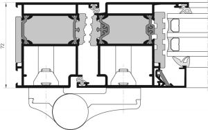
Das Mehrkammerprofilsystem heroal D 72 mit ausgeschäumtem Dämmkern sorgt für eine sichere Verbindung, hohe Stabilität und optimale Wärmedämmung. heroal Türvarianten erfüllen einen Einbruchschutz bis Widerstandsklasse RC3.
Die Entwässerung erfolgt verdeckt liegend und versetzt angeordnet im Flügel.
Leistungseigenschaften
Referenzmaße 1100 x 2200 mm bei Verwendung eines thermisch getrennten Abstandhalters.
Werte gelten für Standardmaße
Uw-Wert bei Standard-Dämmung (W /(m²K)) | Ug 1,1 - 1,42 Ug 0,7 - 1,17 |
Uf-Wert (W/(m²K)) | Ug 1,1 - 1,70 Ug 0,7 - 1,70 |
Luftdurchlässigkeit | 4 |
Schlagregendichtigkeit | 9A |
Windlastwiderstand | C4 |
Schallschutzklasse | 1-3 |
Einbruchhemmung | bis RC3 |
Bedienkräfte | 2 |
Standard- Profilbautiefe in mm | |
Rahmenprofile | 72 |
Flügelprofile | 72 |
Standard-Profilansichtsbreite in mm (Nr. heroal) | |
Rahmenprofile | 70 (21079) |
Flügelprofile | 85 (21091) |
Sprossenprofile | 84 (22032) |
Gesamtansichtsbreiten | 160 |
Systemeigenschaften | |
max. Glas-/ Füllungsstärke (mm) | 52 |
max. Flügelgewichte Standard (kg) | 140 |
max. Flügelgewichte b. Zusatzmaßnahmen (kg) | 180 |
Alle Fenster und Türen können mit unserer kostenlosen Händler-Software ART24 online konfiguriert und bestellt werden.
Gestaltungsvarianten
Das Haustürsystem heroal d 72 zeichnet sich durch eine große Vielfalt an Gestaltungsvarianten aus.
Einflügelige Elemente mit Seitenteil und Oberlichter

Zweiflügelige Elemente mit Seitenteil und Oberlicht

Ein- und zweiflügelige Formelemente

Sicherheit & Beschläge

Das Aufsatzband
Das heroal D 72 wird in der Standardausführung mit dem Dr. Hahn Aufsatzband ausgestattet.
Design & Gläser

Glas & Ornamente
- Unsere Glasarten erfüllen die unterschiedlichsten Anforderungen und reichen von leichten Gläsern aus unserer Light-Serie über Sonnenschutzgläser bis hin zu Schallschutzgläsern.
Glasarten - Ornamentgläser für schöne Strukturen. Mit unserer Auswahl an über 50 verschiedenen Ornamentgläsern erfüllen wir nahezu jeden Kundenwunsch.
Ornamentgläser
Farben und Dekore
Farben & Dekore
Bei der Gestaltung von Aluminium-Elementen stehen ca. 200 RAL-Farben sowie Holz- und Designdekore zur Auswahl. Dabei setzt der Systemgeber heroal auf die hochwetterresistente Pulverbeschichtung (hwr). Diese besonders hochwertige Beschichtung garantiert Farbton- und Glanzgradstabilität über Jahre.